RD Němčice 2016
Architektonická studie včetně vizualizace
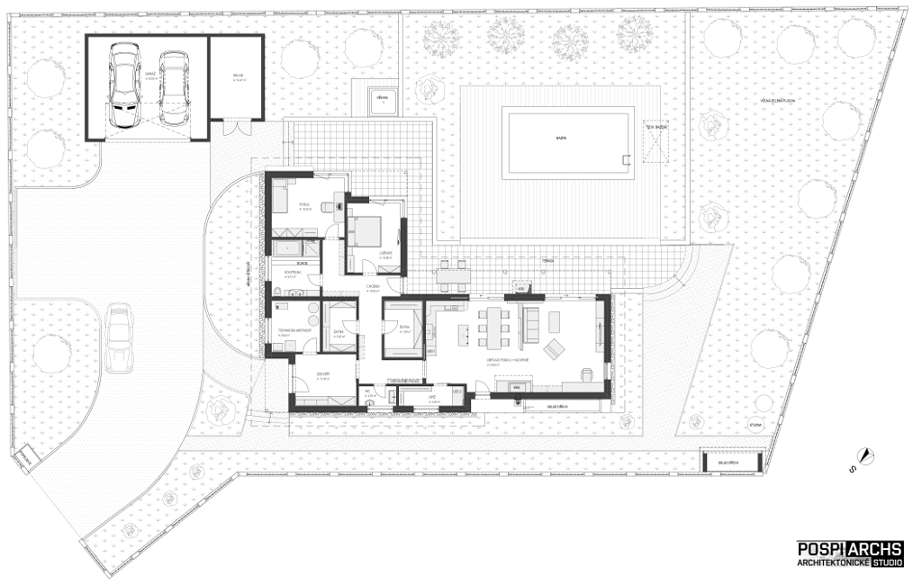
Návrh rodinného domu typu „bungalov“ do nově rozparcelované okrajové části obce. Novostavba je momentálně v procesu výstavby.
Hlavní myšlenkou bylo uzavřít jižní část parcely a oddělit od okolní zástavby, kde je po jižním okraji osazená zeleň a hlavní uliční část odděluje rodinný dům, tím se nám vytvoří uzavřená klidová zóna zahrady. Dispozice je v rozsahu 3 obytné místnosti + kuchyňský kout. Obytné místnosti jsou řešeny jako ložnice, dětský pokoj a obývací pokoj. Všechny jsou situovány směrem do uzavřené klidové části parcely směrem na jižní stranu pozemku. Ložnice a dětský pokoj mají větší prosklená rohová okna, pro pocitové propojení exteriéru a interiéru. Z okna je výhled do zelené části pozemku a bazénu.
Na přání investora zde bylo řešeno větší zádveří a šatny. Obývací pokoj má vlastní krb a je spojený s kuchyňským koutem, který je plně přístupný na venkovní terasu a bazén. Další součástí domu je technická místnost, koupelna, toaleta a spíž. Vnitřní chodby zdobí vestavěné police v různých rozměrových rastrech. Ve venkovní části se nachází garáž pro dva osobní automobily, sklad zahradní techniky a dřeva. Součástí zahrady je volná zelená plocha a neposlední řadě v návaznosti na terasu vířivka. Na přání klienta byl celý objekt řešen v co možná nejsvětlejších barvách s keramickým obkladem imitující kámen.





